

In Cortile is het herenhuis opnieuw uitgevonden. Deze woning kun je op een verrassende manier inrichten.
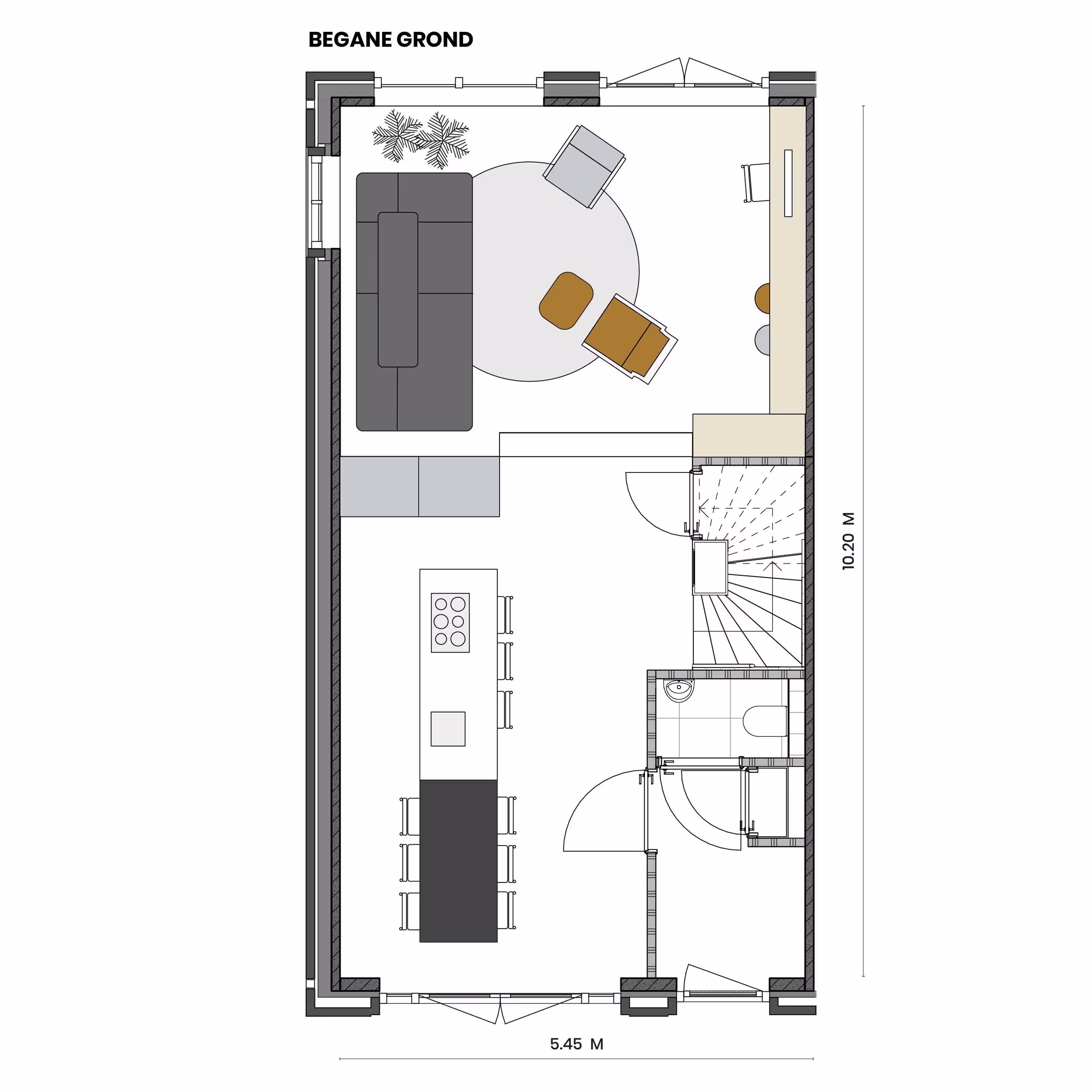
De begane grond van deze herenhuizen heeft een split-level. Dit bescheiden hoogteverschil zorgt voor een natuurlijke verdeling. Het hogere gedeelte met de keuken bevindt zich aan de voorzijde. Op de inspiratieplattegrond zie je goed hoeveel ruimte je daar hebt. Je kunt bijvoorbeeld gemakkelijk een eettafel aan een kookeiland plaatsen. Je hebt veel keuzevrijheid met je keuken. Vraag naar de mogelijkheden bij de makelaar. De achterkant ligt op gelijke hoogte met de tuin en is bestemd voor je living. In je tuin heb je ruimte voor een groot loungeterras en zelfs voor een buitenkeuken.
Op de eerste verdieping bevinden zich drie slaapkamers, waaronder de gevelbrede masterbedroom. Met kasten als roomdivider creëer je gemakkelijk een walk-in wardrobe. Je zou er met een scheidingswand zelfs een extra kamer kunnen maken. Ook de kleinste kamer op deze verdieping is ruim. Op de plattegrond zie je hoe je er bijvoorbeeld een (huis)werk hoek kunt inrichten. De toplaag is een open, vrij in te richten ruimte. Dit geeft talloze mogelijkheden, van extra slaapkamer tot XL thuiskantoor.


Bouwnummer 16 en 18 zijn gespiegeld
LOCATIE Pastoriestraat, Oldenzaal
WOONOPPERVLAK: 143 M2
PERCEEL: van 116 M2 tot 131 M2
WOONLAGEN: 3
AANTAL KAMERS: 4
PARKEREN: 2 privé-parkeerplekken
ENERGIE: gasloos en zeer energiezuinig
PRIJS: 638.000